Chartered Surveyors and Business Property Specialists
Industrial Unit to let / Leasehold

From £8,000 per annum

Connect with Agent Download Brochure PDF
Let
1/11
Fullscreen

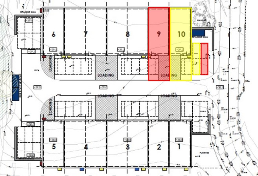
10 Trevol Court, Trevol Business Park, Fisgard Way, Torpoint, Cornwall

Connect with Agent Download Brochure PDF

Overview

  • BRAND NEW INDUSTRIAL UNITS
  • 969sq.ft-1965sq.ft (90sq.m-183sq.m)
  • ELEVATED POSITION WEST OF TORPOINT
  • PARKING AND BICYCLE STORAGE
  • NEW FRI LEASE – AVAILABLE TOGETHER OR SEPARATELY
  • EPC TO BE ASSESSED

Units 9 &10 can be taken TOGETHER OR SEPARATELY. Both units come with a minimum eaves height of 6m, uniform floor loading 40 KN/m2, electric roller shutter door, BT Broadband connectivity and two allocated parking spaces plus loading apron and disabled space.

Trevol Court occupies an elevated position to the west of Torpoint, off one of two main access roads. Fisguard Way is a private looped road off Trevol Road, forming a partly completed business park, in multiple ownership, comprising a mixture of modern hybrid industrial units and older former MOD buildings. Torpoint is linked to the City of Plymouth via a regular car ferry service as well as the A374 (formerly the A38) as well as the A38 dual carriageway and Tamar Bridge at Saltash It is occupied by a range of largely independent businesses, including Essential Supplies, AMS fabrication, Motor Trade users and plumbers’ merchants.

Interested in this Property?
Connect with our Expert

Leigh Robinson Commercial Agency Surveyor - Listers View Profile

Call: 01752 222135
Email: lar@listers.uk.com

Other Industrial Unit Properties you might be interested in

Available Freehold
1/14
Industrial Unit for sale
POA
  • SUBSTANTIAL DETACHED WAREHOUSE INDUSTRIAL UNIT
  • 36,995 sq.ft (3,437 sq.m)
  • EXTERNAL YARD PROVIDING DELIVERY APRON, DISPLAY OR PARKING
  • CENTRALLY LOCATED SITE WITH EXCELLENT ROAD LINKS
  • AVAILABLE ON NEW LEASE TERMS OR FREEHOLD BASIS
  • EPC B (50)
Gareth Forrest Director
Let Leasehold
1/12
Industrial Unit to let
£8 (from) per sq.ft
  • INDUSTRIAL UNIT
  • 5409sq.ft / 503sq.m
  • POPULAR & ACCESSIBLE INDUSTRIAL ESTATE
  • DEDICATED FORECOURT PARKING AREA
  • NEW LEASE TERMS
  • EPC C70
Director
Sold Leasehold
1/7
Industrial Unit to let
£6,000 (from) Per annum
  • WORKSHOP / BUILDERS STORE
  • 424 sq.ft ( 39 sq.m )
  • CENTRAL LOCATION
  • WALKING DISTANCE OF PLYMOUTH CITY CENTRE
  • NEW FLEXIBLE LEASE TERMS AVAILABLE
  • EPC: B41
Director
Available Leasehold
1/7
Industrial Unit to let
£8,000 Per Annum Excl
  • INDUSTRIAL BUSINESS UNIT
  • 640 SqFt ( 59 SqM )
  • CONVENIENT A38 ACCESS
  • ALLOCATED PARKING FOR TWO VEHICLES
  • NEW LEASE TERMS AVAILABLE
  • EPC D (100)
Leigh Robinson Commercial Agency Surveyor - Listers
Let Leasehold
1/6
Industrial Unit to let
£8,000

Mid-terrace unit, in a prominent position, constructed of steel portal frame with cavity brick and block walls with steel profile sheet cladding. The unit benefits from a roller shutter door (2.9m x 3m) with pedestrian access door to side, WC facilities, office area with rear fire door and restricted height mezzanine over. Three phase power. Minimum eaves 3.73m. Externally, there is allocated parking for two vehicles.

Commercial Agency Surveyor - Listers
Available Leasehold
1/5
Industrial Unit to let
£8,000 Per Annum Excl
  • INDUSTRIAL BUSINESS UNIT
  • 643 sq.ft ( 60 sq.m )
  • CONVENIENT A38 ACCESS
  • ALLOCATED PARKING
  • NEW LEASE TERMS AVAILABLE – NO MOTOR USE
  • EPC D (90)
Leigh Robinson Commercial Agency Surveyor - Listers
Available Leasehold
1/7
Industrial Unit to let
£9,000 (from) Per annum
  • BRAND NEW INDUSTRIAL UNIT
  • 969sq.ft (90sq.m)
  • ELEVATED POSITION WEST OF TORPOINT
  • PARKING AND BICYCLE STORAGE
  • NEW FRI LEASE
  • EPC TO BE ASSESSED
Leigh Robinson Commercial Agency Surveyor - Listers
Let Leasehold
1/6
Industrial Unit to let
£9,950
  • TWO NEW BUILD HYBRID INDUSTIAL UNITS
  • EACH UNIT MEASURES 797 sq.ft (74.04 sq.m)
  • ALLOCATED PARKING PLUS DELIVERY APRON
  • AVAILABLE ON NEW LEASE TERMS TOGETHER OR SEPARATELY
  • 3 PHASE MAINS POWER
Leigh Robinson Commercial Agency Surveyor - Listers
Let Leasehold
1/8
Industrial Unit to let
£10,000 (from) Per annum
  • LIGHT INDUSTRIAL WORKSHOP / STUDIO WITH OFFICES AND WAREHOUSE
  • 850 SqFt (79 SqM)
  • POPULAR BUSINESS CENTRE IN ACCESSIBLE LOCATION IN PLYMPTON
  • ALLOCATED PARKING FOR TWO VEHICLES
  • AVAILABLE ON NEW LEASE TERMS TO BE AGREED
  • EPC D78
Leigh Robinson Commercial Agency Surveyor - Listers