Chartered Surveyors and Business Property Specialists
Office to let / Leasehold

£17,500

Connect with Agent Download Brochure PDF
Let
1/8
Fullscreen

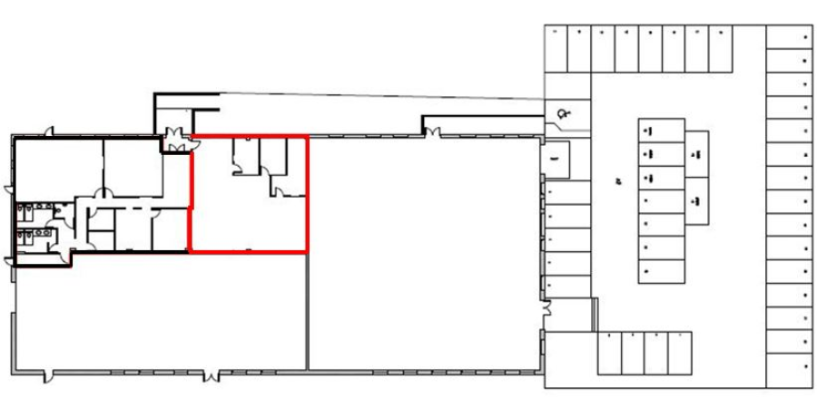
Unit 2 Archant House, Babbage Road, Totnes, Devon

Connect with Agent Download Brochure PDF

Overview

  • MODERN SELF-CONTAINED OFFICES
  • 1,599 SQ FT (149 SQ M)
  • TOWN CENTRE LOCATION
  • 5 ALLOCATED PARKING SPACES
  • AVAIABLE IMMEDIATELY WITH NEW LEASEHOLD
  • EPC RATING TO BE CONFIRMED

Part of a converted former factory, of steel portal frame construction with profile steel cladding and block walls, offering open plan offices with 3 demountable partitioned offices, fully fitted kitchen, and male/female WCs. The specification includes some structured IT cabling, LED lighting in suspended ceiling, air-conditioning and carpet throughout. Externally there are 5 allocated car parking spaces. EPC: to be confirmed.

Totnes is a market town in South Devon, 7 miles west of Torbay and 25 miles East of Plymouth. Exeter lies 35 miles north. The town straddles the River Dart at its lowest fixed road crossing and is therefore a focal point for the Borough of The South Hams. It enjoys a lively, mainly independent retail trade although there is a major supermarket. The town is connected by a mainline railway station with services to London (Paddington) in under 3 hours and the A38, which links to the M5 at Exeter.

Interested in this Property?
Connect with our Expert

Leigh Robinson Commercial Agency Surveyor - Listers View Profile

Call: 01752 222135
Email: lar@listers.uk.com

Other Office Properties you might be interested in

Available Leasehold
1/6
Office to let
£2,538 Prices from
  • OFFICE UNITS
  • FROM 658 SqFt ( 61 SqM )
  • LOCATED IN DEVEONPORT JUST TO THE WEST OF THE CITY CENTRE
  • GRADE II LISTED FORMER NAVAL RESIDENCE
  • PARKING SPACES AVAILABLE BY AGREEMENT
Leigh Robinson Commercial Agency Surveyor - Listers
Let Leasehold
1/5
Office to let
£6,000 Per Annum Excl
  • RETAIL/OFFICE UNIT
  • 223sqft / 21sqm
  • GROUND FLOOR
  • BUSY THOROUGHFARE – HEART OF STOKE
  • NEW LEASE TERMS
  • EPC C55
Commercial Agency Surveyor - Listers
Let Leasehold
1/18
Office to let
£6,000 (from) Per annum
  • OFFICE BUSINESS UNITS
  • 240 – 530 sqft ( 22 – 49 sqm )
  • AVAILABLE TOGETHER OR INDIVIDUALLY
  • OPEN PLAN OFFICES
  • NEW LEASE TERMS AVAILABLE
  • EPC – Unit 29B: B45; Unit 29C: D86
Commercial Agency Surveyor - Listers
Let Leasehold
1/5
Office to let
£6,500
  • REFURBISHED GROUND FLOOR OFFICE SUITE
  • 442 SqFt ( 41 SqM )
  • SITUATED 5 MILES EAST OF PLYMOUTH CITY CENTRE WITH GOOD ACCESS TO THE A38
  • 1 CAR PARKING SPACE
  • ENERGY PERFORMANCE ASSET RATING – C(65)
Gareth Forrest Director
Available Leasehold
1/10
Office to let
£6,500 Per Annum Excl
  • MODERN OFFICE IN CONVERTED BUILDING
  • 319 sq.ft ( 30 sq.m )
  • CENTRAL LOCATION
  • ALLOCATED CAR PARKING SPACE
  • CLOSE TO PLYMOUTH CITY CENTRE
  • EPC B (36)
Leigh Robinson Commercial Agency Surveyor - Listers
Let Leasehold
1/9
Office to let
£6,500 Per Annum Excl
  • MODERN REFURBISHED RETAIL/OFFICE SPACE
  • 504 SQ FT (860 SQ M)
  • PROMIENT ESTABLISHED TRADE PARK LOCATION/ EASY ACCESS TO A38
  • 2 ALLOCATED PARKING SPACES
  • NEW LEASE TERMS AVAILABLE
  • EPC B (49)
Leigh Robinson Commercial Agency Surveyor - Listers
Let Leasehold
1/9
Office to let
£6,995
  • MODERN MEWS STYLE GROUND FLOOR BUSINESS UNIT
  • 297sqft / 28sqm
  • DUAL ASPECT FRONTAGE
  • NEW FR&I LEASE AVAILABLE
  • NEXT TO A LARGE PUBLIC CAR PARK
  • EPC D 83
Commercial Agency Surveyor - Listers
Let Leasehold
1/7
Office to let
£7,500 (from) Per annum

Completed in early 2015, the available space comprises a self-contained part of the ground floor of a brand new detached office block, in a campus style development of similar buildings. The space is offered with one parking space included and the option of another space at extra cost. The unit provides a stylish open-plan, office environment with an interesting curved wall feature and a shared atrium, male/female and disabled washroom and a tea point within the space. There is potentially use of a shared conference room available as required. The specification includes: suspended ceiling incorporating Cat 2 VDU lighting, carpeted and raised modular floor, for easy IT installation with some network cabling installed. EPC B42

Commercial Agency Surveyor - Listers
Let Leasehold
1/10
Office to let
£8,000 (from) Per annum
  • MODERN OFFICE SPACE
  • 720sqft (67sqm)
  • FIRST YEAR INCENTIVE HEADLINE RENT £8,000pa
  • ALLOCATED PARKING
  • NEW LEASE TERMS
  • EPC D97
Leigh Robinson Commercial Agency Surveyor - Listers