Chartered Surveyors and Business Property Specialists
Leisure for sale / Freehold

£795,000 Guide Price

Connect with Agent Download Brochure PDF
Sold
1/41
Fullscreen

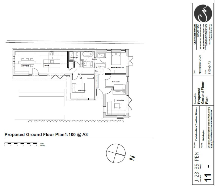
Penhallow Barn & The Flower Hut Glampsite, Trewithen Moor, Stithians, Truro, Cornwall

Connect with Agent Download Brochure PDF

Overview

  • EPITOME OF A ‘LIFESTYLE LEISURE’ SITE NEAR TRURO AND FALMOUTH
  • NEW BUILD TWO BED ‘BARN’ WITH PERMISSION TO EXTEND
  • ALL YEAR HOLIDAY USE FOR THREE UNITS (GLAMPING POD/SHEPHERDS HUT/ GLAMPING TENT)
  • SET IN C. 1.05 ACRE OF WELL PLANTED AND MAINTAINED GARDENS AND GROUNDS
  • TURNOVER OF C.£43,000 AND PROFIT OF C. £30,000 PA
  • WORKSHOP BUILIDNG (36 SQ M), POSSIBLE ANNEXE / LET (STPP)
  • EPC : A 107

Interested in this Property?
Connect with our Expert

Graham Timmins Associate / Head of Business Transfer - Miller Commercial View Profile

Call: 01872 247019
Email: gt@miller-commercial.co.uk

Other Leisure Properties you might be interested in

Under offer Leasehold
1/10
Leisure to let
£12,000 Per Annum Excl
  • VERSATILE CLASS E SPACE TO LEASE
  • 1,227 sq.ft ( 114 sq.m )
  • SECURE, SELF-CONTAINED BASEMENT UNIT
  • ALLOCATED PARKING
  • NEW LEASE TERMS AVAILABLE
  • EPC C (63)
Leigh Robinson Commercial Agency Surveyor - Listers
Available Leasehold
1/15
Leisure to let
£15,000 Per Annum Excl
  • GROUND FLOOR BUSINESS UNIT
  • 2,156 SqFt ( 200 SqM )
  • POPULAR & ACCESSIBLE LOCATION
  • PARKING
  • GOOD ROAD LINK TO A38
  • EPC C61
Leigh Robinson Commercial Agency Surveyor - Listers
Available Leasehold
1/1
Leisure for sale
£79,950
  • Convenient location in a popular Cornwall town
  • Modern light industrial unit [approx. 8,000sqft total]
  • Reception, main gym floor, fitness studios, changing rooms and parking
  • Fully equipped with extensive range of high-end equipment
  • Popular well established business, loyal membership base, strong social media presence
  • Excellent turnover with genuine potential for further growth
  • Turnkey operation
Paul Goss Consultant
Available Leasehold
1/20
Leisure for sale
£350,000 Price
  • COASTAL SEASONAL HOLIDAY BUSINESS
  • 7 STATIC CARAVANS FOR HIRE
  • SIGNIFICANT UPDATING OF INFRASTRUCTURE
  • LINEN STORE / LAUNDRY ETC
  • TURNOVER C. £83,000 PA (SEASON)
  • RETIREMENT SALE
  • EPC N/A
Graham Timmins Associate / Head of Business Transfer - Miller Commercial
Available Freehold
1/15
Leisure for sale
£850,000 Guide Price
  • WELL ESTABLISHED FAMILY RUN BUSINESS
  • GO KARTING TRACK WITH 2 BED BUNGALOW
  • IDEALLY LOCATED JUST OFF THE A30
  • CLOSE TO ST IVES AND HAYLE
  • TURNOVER £275,000
  • ENERGY PEFORMANCE ASSEST RATING ‘C’ (52)
Jonny Bright Senior Surveyor - Miller Commercial
Available Freehold
1/1
Leisure for sale
£1,350,000

Coastal touring and static site in North Cornwall.

Graham Timmins Associate / Head of Business Transfer - Miller Commercial
Sold Freehold
1/42
Leisure for sale
£1,550,000
  • HOLIDAY LODGES (6) LEISURE FARM BUSINESS
  • 7 BEDROOM OWNERS ACCOMMODATION
  • SET WITHIN C. 20.29ACRES OF PASTURE / PONDS
  • BEAUTIFULLY PRESENTED AND EQUIPPED
  • 3 YEAR AVERAGE T/O £138K, ADJUSTED NET £72K PA
  • EXTANT PERMISSION FOR 7 ADDITIONAL LODGES
  • A WONDERFUL LIFESTYLE OPPORTUNITY
Graham Timmins Associate / Head of Business Transfer - Miller Commercial
Available Freehold
1/12
Leisure for sale
£1,600,000 Offers in the region of
  • Coastal leisure sports resort and golf club
  • Stunning setting in World Heritage Site and AONB
  • Fully licensed large bar/restaurant areas, functions suite and commercial kitchens
  • 23 boutique en suite letting bedrooms
  • Leisure suite with heated indoor pool, sauna, jacuzzi and air-conditioned gym
  • Fully licensed bar/functions room plus Wedding Licence for civil ceremonies
  • Planning for additional letting suites offering genuine growth potential
Paul Goss Consultant
Available Freehold
1/12
Leisure for sale
£1,600,000
  • Coastal leisure sports resort and golf club
  • Stunning setting in World Heritage Site and AONB
  • Fully licensed large bar/restaurant areas, functions suite and commercial kitchens
  • 23 boutique en suite letting bedrooms
  • Leisure suite with heated indoor pool, sauna, jacuzzi and air-conditioned gym
  • Fully licensed bar/functions room plus Wedding Licence for civil ceremonies
  • Planning for additional letting suites offering genuine growth potential
Paul Goss Consultant