Chartered Surveyors and Business Property Specialists
Residential for sale / Freehold

£325,000 Guide Price

Connect with Agent Download Brochure PDF
Sold
1/14
Fullscreen

Former 190 Degrees West, Sennen, Penzance, Cornwall

Connect with Agent Download Brochure PDF

Overview

  • RETAIL/CATERING PREMISES & DEVELOPMENT OPPORTUNITY
  • 1,821 SQ FT (169.1 SQ M)
  • SEA VIEW LOCATION IN SENNEN VILLAGE
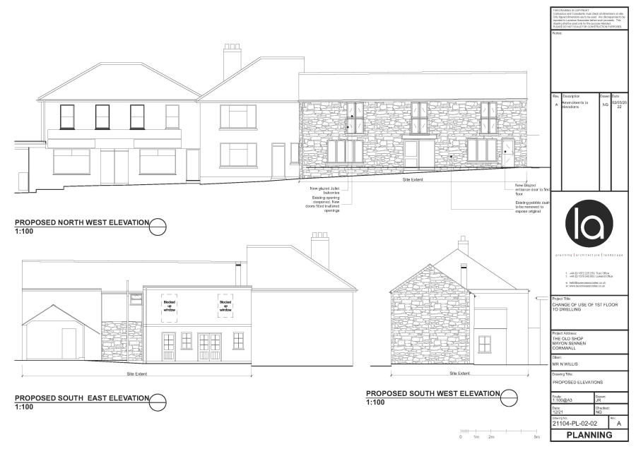
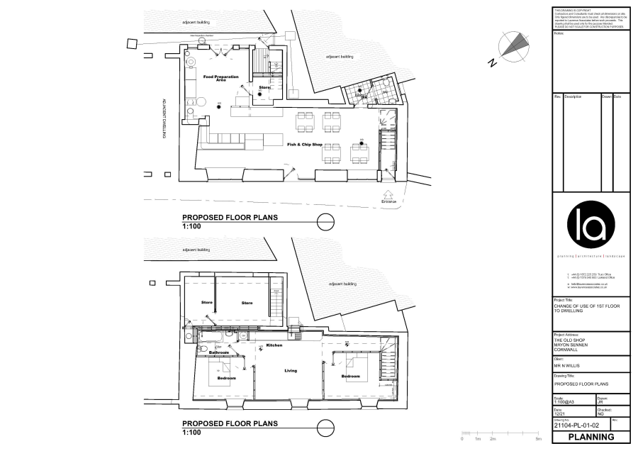
  • PLANNING PERMISSION GRANTED
  • 2 BED RESIDENTIAL CONVERSION TO FIRST FLOOR
  • EPC: C (72)

This rarely available freehold opportunity comprises a ground floor catering/retail area, historically run as a coffee shop/fish and chip shop/gift store, alongside a first floor area which has planning for a 2 bed residential conversion.

Owned by our clients for many years they have obtained the necessary planning permission, with details available upon request and under reference: PA22/01711.

In all this is an opportunity to acquire a property with a proven business history, alongside potential living accommodation or holiday let potential. Alternatively there is investment potential; by acquiring a new tenant for the ground floor commercial premises and the first floor accommodation.

The property is situated above the very popular village of Sennen, famous for it’s pretty harbour and surfing beaches. Also, it’s proximity to Lands End and the South West Coast Path. The village has a school, hostelries and some gift shops. The
nearby town of Penzance has all the amenities of a large town, including the mainline train.

Interested in this Property?
Connect with our Expert

Jonny Bright Senior Surveyor - Miller Commercial View Profile

Call: 01872 247022
Email: jb@miller-commercial.co.uk

Other Residential Properties you might be interested in

No properties to display