Chartered Surveyors and Business Property Specialists
Office for sale / Freehold

£350,000 Guide Price

Download Brochure PDF
Sold
1/10
Fullscreen

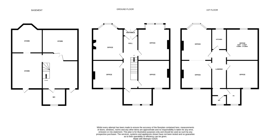
41 Houndiscombe Road, Mutley, Plymouth, Devon

Download Brochure PDF

Overview

  • MID TERRACE OFFICE WITH POTENTIAL FOR RESIDENTIAL CONVERSION (STP)
  • 2738sq.ft / 254sq.m
  • CENTRAL LOCATION WITHIN EASY WALK OF TRAIN STATION
  • UPPER FLOORS REFURBISHED IN 2022 MANY PERIOD FEATURES RETAINED
  • GARAGE
  • EPC: D(84)

A rare opportunity to acquire a double fronted period townhouse in a central location that has been maintained to a high standard throughout. This dressed limestone fronted period townhouse has been used as an office for over 40 years and has been sympathetically maintained throughout. The property has retained a number of period features which would be attractive to buyers looking for a commercial to residential conversion to create and attractive period home.
A garage 2.88m x 8.7m, accessed via the service lane, provides off road parking.

Other Office Properties you might be interested in

Available Leasehold
1/6
Office to let
£2,538 Prices from
  • OFFICE UNITS
  • FROM 658 SqFt ( 61 SqM )
  • LOCATED IN DEVEONPORT JUST TO THE WEST OF THE CITY CENTRE
  • GRADE II LISTED FORMER NAVAL RESIDENCE
  • PARKING SPACES AVAILABLE BY AGREEMENT
Leigh Robinson Commercial Agency Surveyor - Listers
Let Leasehold
1/5
Office to let
£6,000 Per Annum Excl
  • RETAIL/OFFICE UNIT
  • 223sqft / 21sqm
  • GROUND FLOOR
  • BUSY THOROUGHFARE – HEART OF STOKE
  • NEW LEASE TERMS
  • EPC C55
Commercial Agency Surveyor - Listers
Let Leasehold
1/18
Office to let
£6,000 (from) Per annum
  • OFFICE BUSINESS UNITS
  • 240 – 530 sqft ( 22 – 49 sqm )
  • AVAILABLE TOGETHER OR INDIVIDUALLY
  • OPEN PLAN OFFICES
  • NEW LEASE TERMS AVAILABLE
  • EPC – Unit 29B: B45; Unit 29C: D86
Commercial Agency Surveyor - Listers
Let Leasehold
1/9
Office to let
£6,500 Per Annum Excl
  • MODERN REFURBISHED RETAIL/OFFICE SPACE
  • 504 SQ FT (860 SQ M)
  • PROMIENT ESTABLISHED TRADE PARK LOCATION/ EASY ACCESS TO A38
  • 2 ALLOCATED PARKING SPACES
  • NEW LEASE TERMS AVAILABLE
  • EPC B (49)
Leigh Robinson Commercial Agency Surveyor - Listers
Let Leasehold
1/5
Office to let
£6,500
  • REFURBISHED GROUND FLOOR OFFICE SUITE
  • 442 SqFt ( 41 SqM )
  • SITUATED 5 MILES EAST OF PLYMOUTH CITY CENTRE WITH GOOD ACCESS TO THE A38
  • 1 CAR PARKING SPACE
  • ENERGY PERFORMANCE ASSET RATING – C(65)
Gareth Forrest Director
Available Leasehold
1/10
Office to let
£6,500 Per Annum Excl
  • MODERN OFFICE IN CONVERTED BUILDING
  • 319 sq.ft ( 30 sq.m )
  • CENTRAL LOCATION
  • ALLOCATED CAR PARKING SPACE
  • CLOSE TO PLYMOUTH CITY CENTRE
  • EPC B (36)
Leigh Robinson Commercial Agency Surveyor - Listers
Let Leasehold
1/9
Office to let
£6,995
  • MODERN MEWS STYLE GROUND FLOOR BUSINESS UNIT
  • 297sqft / 28sqm
  • DUAL ASPECT FRONTAGE
  • NEW FR&I LEASE AVAILABLE
  • NEXT TO A LARGE PUBLIC CAR PARK
  • EPC D 83
Commercial Agency Surveyor - Listers
Let Leasehold
1/7
Office to let
£7,500 (from) Per annum

Completed in early 2015, the available space comprises a self-contained part of the ground floor of a brand new detached office block, in a campus style development of similar buildings. The space is offered with one parking space included and the option of another space at extra cost. The unit provides a stylish open-plan, office environment with an interesting curved wall feature and a shared atrium, male/female and disabled washroom and a tea point within the space. There is potentially use of a shared conference room available as required. The specification includes: suspended ceiling incorporating Cat 2 VDU lighting, carpeted and raised modular floor, for easy IT installation with some network cabling installed. EPC B42

Commercial Agency Surveyor - Listers
Let Leasehold
1/10
Office to let
£8,000 (from) Per annum
  • MODERN OFFICE SPACE
  • 720sqft (67sqm)
  • FIRST YEAR INCENTIVE HEADLINE RENT £8,000pa
  • ALLOCATED PARKING
  • NEW LEASE TERMS
  • EPC D97
Leigh Robinson Commercial Agency Surveyor - Listers